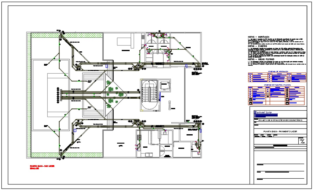
O projeto de instalações hidrossanitárias contempla plantas baixas de água fria e esgotos, isométricas de água fria e detalhamento dos gabinetes sanitários que contenham peças sanitárias com tubulações de esgoto primário e secundário. A abrangência do projeto inclui chegadas e saídas de água dos reservatórios, pontos de água fria, pontos de esgotos, inclusive trajeto das tubulações, captação e instalações de drenagem de águas pluviais.